MODEL HOUSE
マエショウの家が快適な理由、
全てお見せします。
奈良県北西部は1日の温度差が大きい地域。1年中快適に過ごすためには、家の性能が重要です。
マエショウでは高断熱・高気密はもちろんのこと、換気・空調を最適化し、パッシブデザインで自然のエネルギーを活用することによって快適な住空間を実現しています。
ぜひ夏涼しく冬暖かい家を実際に体験してください!
お家のスペック
- 耐震等級3(許容応力度計算による)
- 断熱等級5(UA値 = 0.6以下)
- ダクト式第3種換気システム(ルフロ)
- 内部結露計算
LDK内観
※クリックすると画像が拡大されます
キッチン
ダイニングと一体感のある開放的なキッチンスペースは、カウンターや収納にあたたかな雰囲気の木材を使用。水彩画のような淡い色合いのタイルで空間を演出しています。
パントリー
ストック品等は大容量のパントリーでスッキリ収納。
ダイニング
窓が多く明るいダイニングスペースは心地よい空間。
リビング
高窓から柔らかな光が差し込むリビングスペース。
物件概要
住所
奈良県北葛城郡広陵町三吉702-18
| 土地 | 敷地面積 130.66㎡ 約39.52坪 地目 宅地 地勢 平坦 |
|---|---|
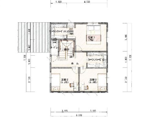
| 建物 | 構造 木造2階建て 延床面積 1階 57.12㎡ 2階 49.27㎡ 合計 106.39㎡ 約32.17坪 間取り 3LDK |
| 制限 | 都市計画 市街化区域 用途地域 第一種住居地域 建ぺい率 60% 容積率 200% |
| 施設 | 上水道 公営 下水道 公営 |
| 学区 | 広陵西小学校 広陵中学校 |
| 引渡 | 引渡時期 応相談 現状 2024年4月完成済 建築確認番号 第23確認建築財なら中1065号 |
周辺施設
広陵西小学校 徒歩14分
広陵中学校 徒歩21分
ひだまり保育園 徒歩8分
エコールマミ(複合施設) 徒歩17分
広陵疋相郵便局 徒歩10分
広陵町立図書館 徒歩12分
竹取公園 徒歩14分
モデルハウス見学ご予約フォーム
- 入力画面
- 確認画面
- 完了





